preloader image
  • Nos agences

  • Contact

  • Catalogue

    Recevez notre brochure

  • Actualité

  • De 118m2 à 118m2
    De 118m2 à 118m2
  • 4 chambre
    4 chambre
  • Ligne moderne
  • maison écologique RE2020
    RE2020
  • Garage intégré

Classe énergie

  • A
  • B
  • C
  • D
  • E
  • F
  • G

Ges

  • A
  • B
  • C
  • D
  • E
  • F
  • G

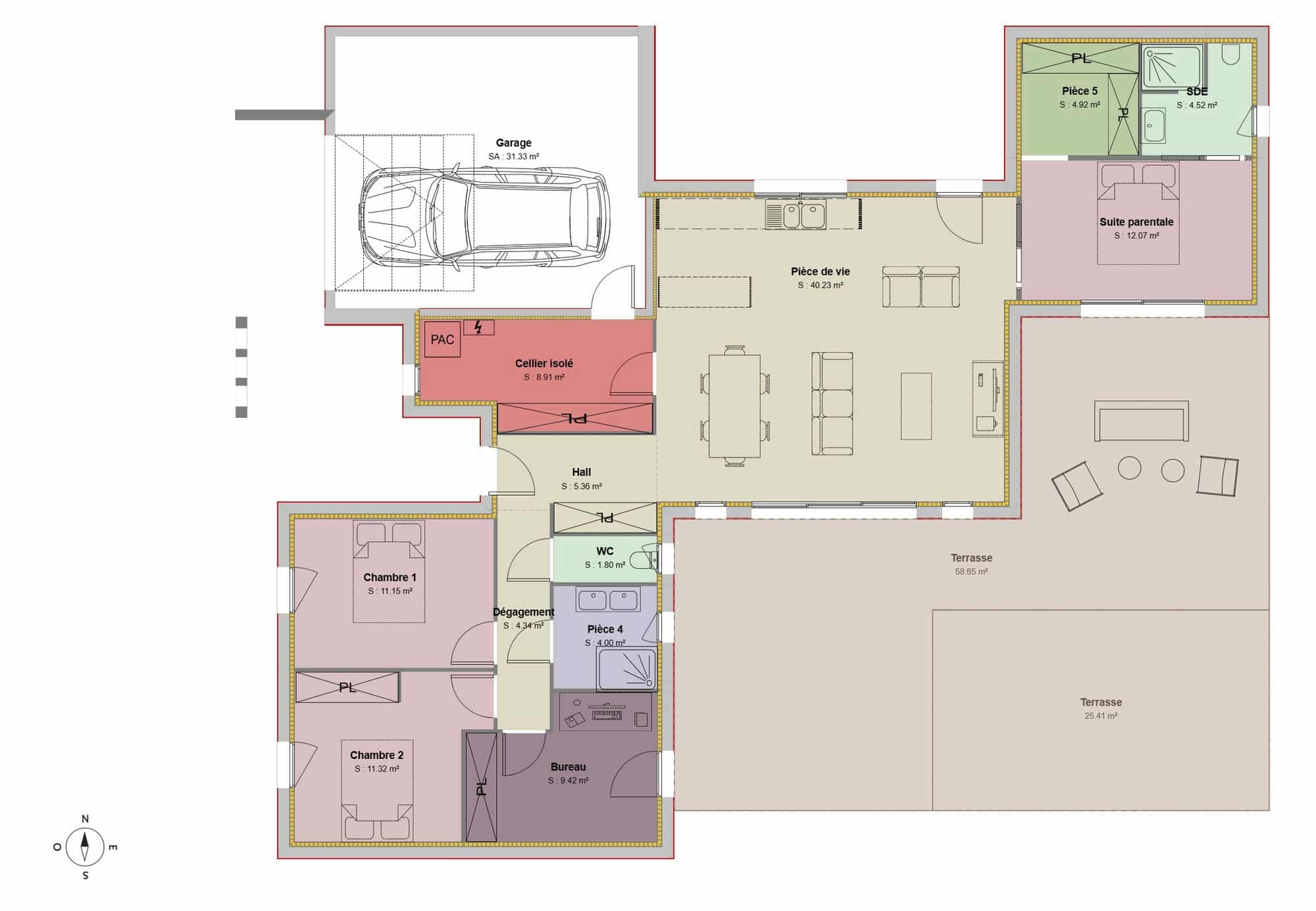
Descriptif du modèle

Belle maison d’architecture contemporaine de type T5 – avec des espaces vie/nuit baignés de lumière.

Elle se compose : d’une entrée avec vestiaire – une première partie nuit avec deux chambres (placards intégrés) et un bureau avec un accès jardin ; une belle pièce de vie de 40 m² double exposition et hauteur sous plafond de 2,70 ml, une suite parentale avec SdE privative, dressing. Un grand cellier et un garage de 31 m² permettant le stationnement d’un véhicule et deux roues.

Ouverte sur le jardin et la forêt, sans vis-à-vis, d’autres espaces intimistes, sous forme de patio, pourront être crées.

Options les plus vendues sur ce modèle

Prix de votre modèle

Veuillez indiquer votre code postal pour connaitre le prix de ce modèle

Obtenir des informations pour faire construire

Formulaire contact principal

Plans du modèle

  • De 118m2 à 118m2
    De 118m2 à 118m2
  • 4 chambre
    4 chambre
  • Ligne moderne
  • maison écologique RE2020
    RE2020
  • Garage intégré

Vue 3D du modèle

Modèle similaire

Maison traditionnelle

  • Suite Parentale
  • Plancher Chauffant
  • Garage intégré
  • Baies coulissantes

Investisseurs

  • Haute Perfomance Thermique
  • Baies Vitrées au Sud
  • Basse Consommation

Investisseurs

  • Garage accolé
  • Grand Séjour
  • Haute Perfomance Thermique

Investisseurs

  • maison écologique RE2020
    RE2020
  • Haute Perfomance Thermique
  • Basse Consommation

Investisseurs

  • Investisseurs
  • Haute Perfomance Thermique
  • 2éme salle de bain

Bâtiments Professionnels

  • Haute Perfomance Thermique
  • Luminosité
  • Porche d’entrée
Jolie maison contemporaine en charente

Sur mesure ou sur plan, trouvez la maison de vos rêves

×